FN7-12型 系列户内高压负荷开关及熔断器组合电器
概 述
FN7-12DR型交流高压负荷开关是一种新型产气式户内高压负荷开关,适用于交流50Hz,额定电压10KV的三相交流电力系统中,作为开断负荷电流及关合短路电流之用。
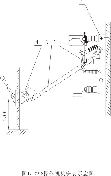
安装及使用
额定参数
主要规格
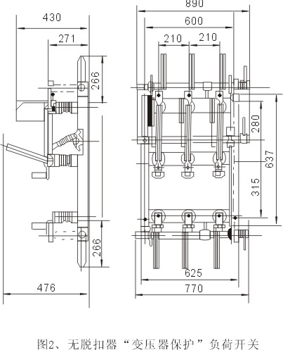
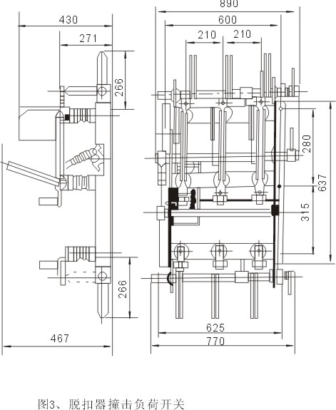
外形及安装图



FN7-12型 系列户内高压负荷开关及熔断器组合电器
概 述
FN7-12DR型交流高压负荷开关是一种新型产气式户内高压负荷开关,适用于交流50Hz,额定电压10KV的三相交流电力系统中,作为开断负荷电流及关合短路电流之用。
安装及使用
额定参数
主要规格
外形及安装图


