- FZN25-12型 系列真空负荷开关
概述
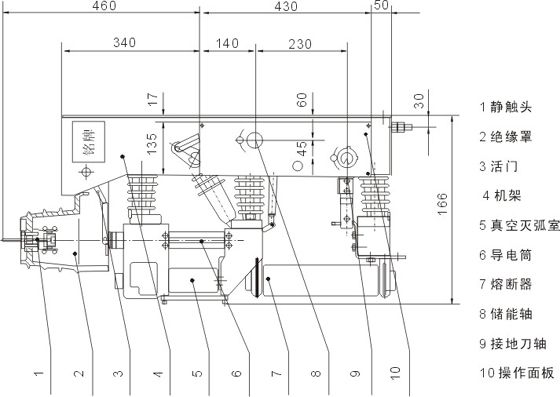
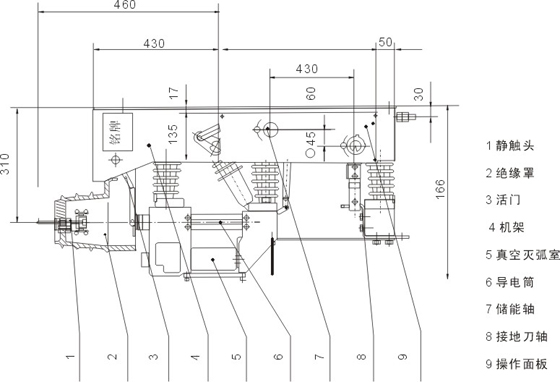
FN25、FZRN25 型真空负荷开关和组合电器,适用三相交流50Hz环网或终端供电和工业用电设备中,作负荷控制和短路保护之用,负荷开关分合负荷、闭环电流、空载变压器和电缆充电电流。组合电器可以开断额定短路电流的任何电流。采用直动式隔离断口和真空灭弧室联动。具有手动和电动功能。
FZN25、FZRN25独特的传动结构设计,灭弧室仅在关合和开断的瞬间承受高压,故尺寸小,价格低。
FZN25、FZRN25可实现隔离断口和灭弧室断口的一次性操作。
FNZ25、FZRN25在静触头与动触头导电筒之间有与接地开关互为联动的接地活门,既保证了安全又方便了检修。
主要技术参数











